Apartment I Bedroom

Apartment I Bedroom

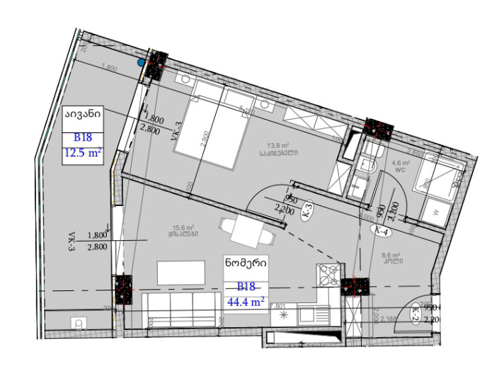
Total Area 56.9 მ²
Bedroom 1
Living Area 44.4 მ²
Balcony 12.5 მ²
Block E
Building B

Call Request

    https://tbilisiboulevard.com/wp-content/uploads/2026/03/boulvar-eng-copy.png

    Follow Us:

    Contact Us

    N9 Beshenova Street, Tbilisi
    Request a Call