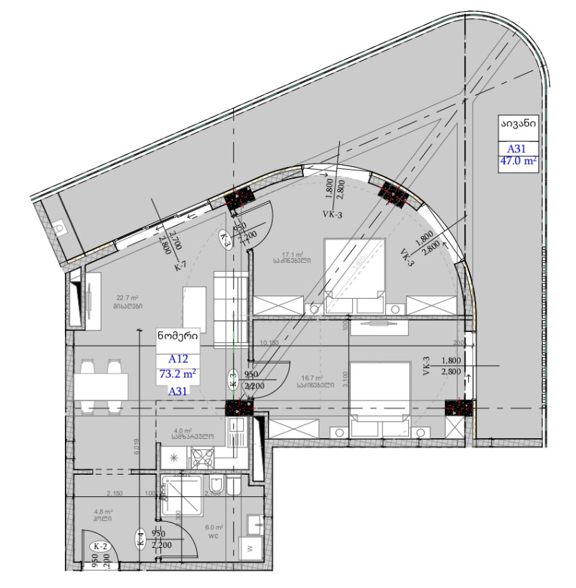
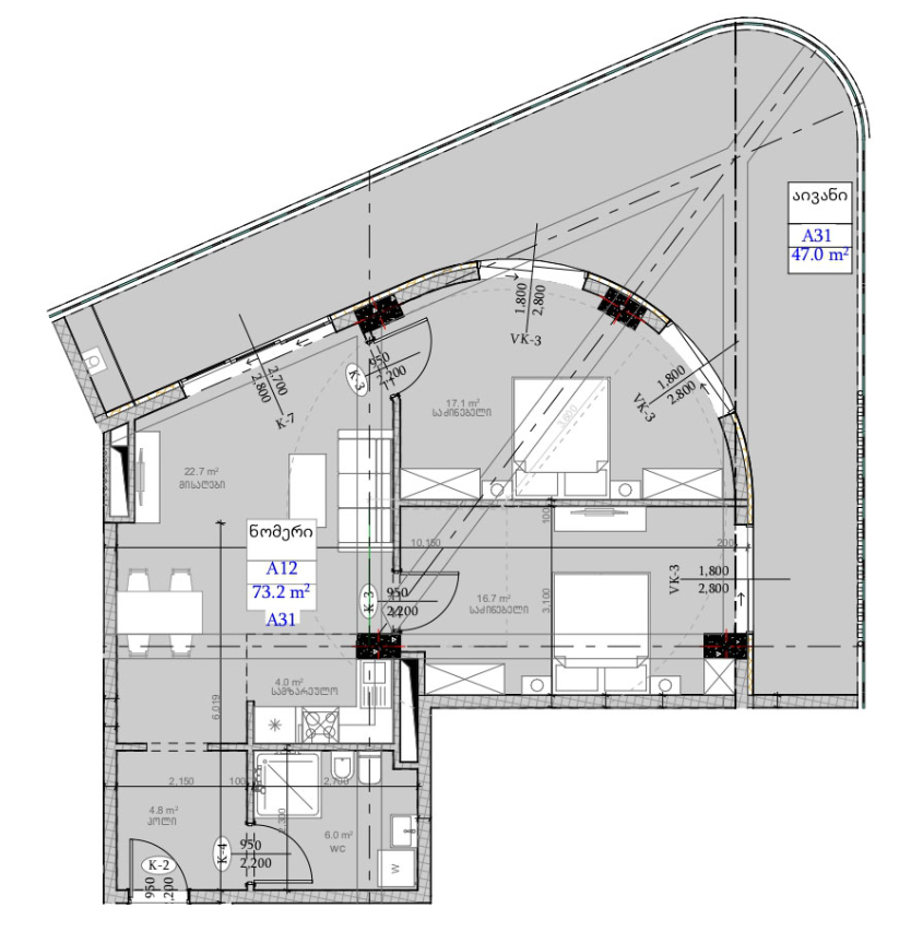
Apartment II Bedroom

Apartment II Bedroom

Total Area 120.2 მ²
Bedroom 2
Living Area 73.2 მ²
Balcony 47.0 მ²
Block E
Building A

Call Request

    https://tbilisiboulevard.com/wp-content/uploads/2026/03/boulvar-eng-copy.png

    Follow Us:

    Contact Us

    N9 Beshenova Street, Tbilisi
    Request a Call